We currently have a few Master planned design, high quality Duplexes in Parade Pemulwuy, 30 kms west of the Sydney CBD and only 11km from Parramatta. This is a great opportunity for you to secure an investment property or your new family home with 5% deposit and no construction costs along the way. Final payment due on completion which is expected to be approx October 2023. Self- Managed Superfund owners can also take advantage of this fantastic opportunity. We have 4-bedroom, 3 bathroom and single garage duplexes available with a single contract but only whilst stock lasts. We also have single and double storey homes available so speak to Christine Buckley for more information.
KEY INCLUSIONS
• 2590mm ceilings - ground floor & 2440mm first floor
• Hybrid timber look flooring
• 20mm Stone benchtops
• Miele Appliances
• Dual zone Ducted Reverse Cycle Air Conditioning
• LED Downlights throughout except bedrooms
• Driveway, Clothesline and Landscaping
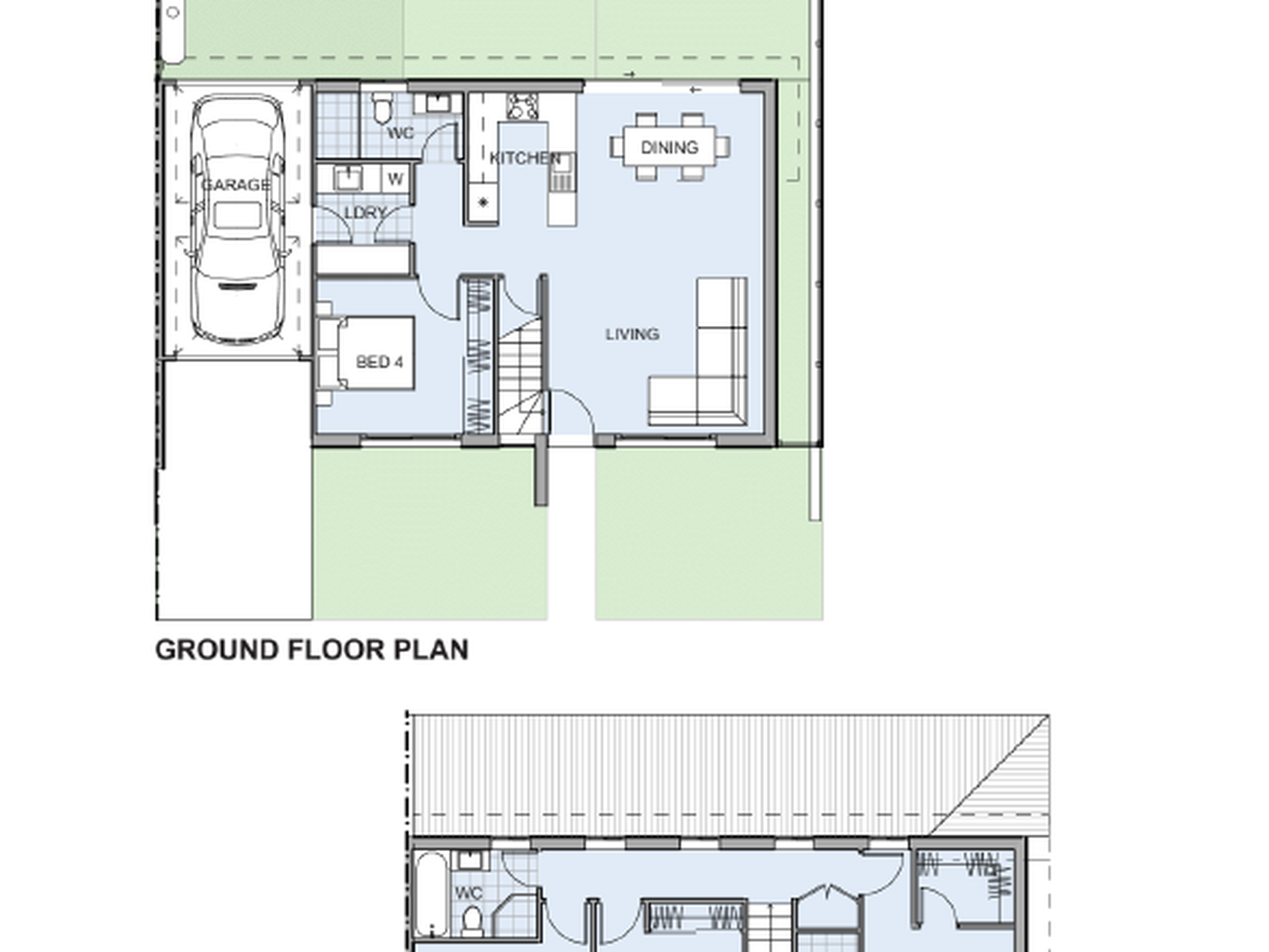
Please note that the drawings are artists impression only and may not be the exact finished design.
For more information or to secure one of these fabulous Duplexes, call Christine Buckley on 0450 045 076 or email [email protected]

